帐号
注册
密码
登录
关闭
安全选项
安全提问(未设置请忽略)
母亲的名字
爷爷的名字
父亲出生的城市
您其中一位老师的名字
您个人计算机的型号
您最喜欢的餐馆名称
驾驶执照的最后四位数字
找回密码
记住我
论坛
标签
会员
搜索
快速搜索
帖子标题
作者
版块
石头论坛
»
默认分类
»
有求必应屋
» 〖祥符新村〗温馨独立单间﹌有空调热水器﹌拎包入住﹌可月付
默认分类
江湖召集令
Outing腐败照
我运动我快乐
有求必应屋
吐槽大会
福利来了
廉正板块
返回列表
查看:
416
|
回复:
1
〖祥符新村〗温馨独立单间﹌有空调热水器﹌拎包入住﹌可月付
[复制链接]
发送短消息
UID
54
精华
0
查看公共资料
搜索帖子
JXSX1801
组别
中级会员
生日
帖子
12
积分
267
性别
注册时间
2015-01-31
1
#
字体大小:
t
T
发表于
2015-02-09 10:23
|
只看楼主
银光图片
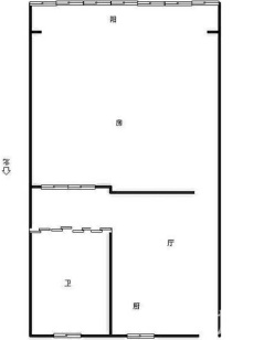
租金:500元/月(押一付三)
户型:
1室1卫 - 整租 - 26.00 ㎡
概况:
朝南 - 普通住宅 - 简单装修
楼层:2/6
小区:祥符新村
位置:杭州 拱墅 石祥路
莫干山路到三墩转弯的岔路口
配置:
床 / 家具 / 宽带网 / 空调 / 热水器
联系人:郑丽萍
联系方式:
133 9651 2622
CgEHDFSqFGSSkBStAABYwHMn6nY963_408-308_9-0.jpg
(25.41 K)
2015/2/9 10:23:36
CgEHK1SqFDWWm1WAAABN,vKVd60073_408-308_9-0.jpg
(25.76 K)
2015/2/9 10:23:36
CgEHolSqFFH8t1xlAAAcwkD8XfY155_408-308_9-0.jpg
(11.06 K)
2015/2/9 10:23:36
CgEHolSqFGrFRZI9AAAz3QsRCjs690_408-308_9-0.jpg
(7.47 K)
2015/2/9 10:23:36
分享
转发
TOP
发送短消息
UID
86
精华
0
查看公共资料
搜索帖子
JXSX1716
组别
注册会员
生日
帖子
4
积分
109
性别
注册时间
2015-02-02
2
#
字体大小:
t
T
发表于
2015-02-09 17:29
|
只看该用户
23333333333
TOP
上一主题
|
下一主题
返回列表
高级编辑器
B
Color
Image
Link
Quote
Code
Smilies
默认表情
你需要登录后才可以发帖
登录
|
注册
发表回复
查看背景广告
隐藏
发新主题
默认分类
江湖召集令
Outing腐败照
我运动我快乐
有求必应屋
吐槽大会
福利来了
廉正板块
浏览过的版块
Outing腐败照
江湖召集令
我运动我快乐
福利来了
TOP
设置头像
个人资料
用户组
收藏夹
积分
Default